Каркасные дома и
дома из бруса под ключ
8 (800) 555-21-96
Россия
8 (499) 281-64-71
Москва
8 (812) 425-69-22
Санкт-Петербург
Живые фото в VK
Москва
ул. Проходчиков д. 16
10:00 до 20:00 Без обеда и выходных
Москва и
область

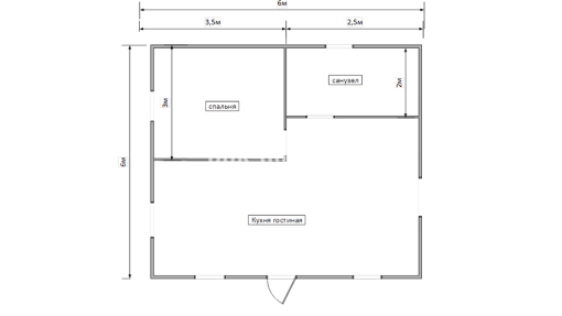
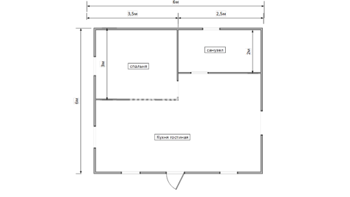
Одноэтажный каркасный дом 6х6м в Ленинградской области

Одноэтажный каркасный дом 6х6м в Ленинградской области
Площадь
36 м2
Количество
комнат
2
Количество
санузлов
1
Балконы
Нет
Терраса
Нет
В проект входит:
Фундамент | Кровля | Силовой каркас | Наружная отделка | Входная дверь | Сетка от грызунов | Доставка | Бытовка для строителей | Туалет | Сборка | Гарантия | Персональный менеджер | Технадзор | Проектная документация
Добро пожаловать!

Мы используем файлы cookies для улучшения работы сайта. Продолжая пользоваться сайтом, вы соглашаетесь с нашей политикой