Каркасные дома и
дома из бруса под ключ
8 (800) 555-21-96
Россия
8 (499) 281-64-71
Москва
8 (812) 425-69-22
Санкт-Петербург
Живые фото в VK
Москва
ул. Проходчиков д. 16
10:00 до 20:00 Без обеда и выходных
Москва и
область

Каркасный одноэтажный дачный дом «Десна» 8х6.5

Назад
Каркас
100мм под ключ
1 294 900
150мм под ключ
1 641 400
Подробные комплектации
ООО «ПБК ПЛЮС»
ИНН: 5313014586
Аккредитованный подрядчик
в СберБанк и ДОМ.РФ
8% Ипотека с господдержкой
6% Семейная ипотека
5% Ипотека для IT
Характеристики
Материал стен
Материал стен
Каркас
Этажность
Этажность
1
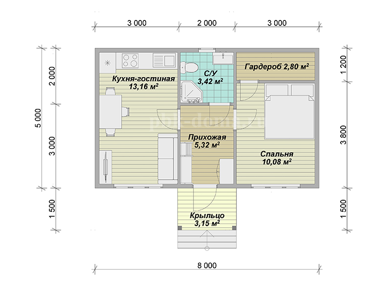
Размеры
Размеры
8 на 6,5
Площадь застройки
Площадь застройки
43 м2
Общая площадь
Общая площадь
34 м2
Сроки строительства
Сроки строительства
20-22 дня
Кол-во С/У
Кол-во С/У
1
Кол-во комнат
Кол-во комнат
1
Балкон
Балкон
Нет
Терраса
Терраса
Нет
Панорамные окна
Панорамные окна
Нет
Второй свет
Второй свет
Нет
5 лет
гарантия
по договору!
Технадзор
на каждом этапе
строительства
Строительство
по
проекту
Сухой
строганный
материал
Комплектация
Возможна перепланировка по данному проекту,
а также изменение в комплектации
1 294 900
100мм под ключ
1 641 400
150мм под ключ
Пиломатериал.
КАМЕРНОЙ СУШКИ.
Обвязка.
Первый венец из не строганного бруса 150х150 мм.
Второй венец из не строганной доски 150х50 мм.
Лаги из не строганной доски 150х50 мм.
Подшивная не строганная доска 40х100 мм.
Черновой пол из не строганной доски 20х100 мм.
Обработка антисептиком.
Пол.
Влаго-ветрозащита: Ondutis А100.
Утепление пола 100 мм или 150 мм рулонным утеплителем.
Паро-влагоизоляция: Ondutis R70.
Вент-зазор: Не строганная рейка 20х40 мм.
Доска половая 27мм.
Стены.
Высота потолка 2.5 м.
Силовой каркас из не строганной доски 100х40 мм.
Силовой каркас из не строганной доски 150х40 мм.
Раскосы из не строганной доски 100х20 мм.
Раскосы из не строганной доски 100х40 мм.
Ригеля из не строганной доски 150х40 мм.
Ветро-влагозащита: Ondutis А100.
Вентилируемый фасад: Не строганная рейка 20х40 мм.
Внешняя отделка: Вагонка хвойная "АВ" или Имитации бруса сорт "АВ".
Утепление стен 100 мм плитным утеплителем.
Утепление стен 150 мм плитным утеплителем.
Паро-влагоизоляция: Ondutis R70.
Вент-зазор: Не строганная рейка 20х40 мм.
Внутренняя отделка: Хвойная вагонка сорт "АВ".
Перегородки.
Силовой каркас из не строганной доски 100х40 мм.
Раскосы из не строганной доски 100х20 мм.
Ригеля из не строганной доски 100х40 мм.
Отделка: Хвойная вагонка сорт "АВ".
Чердачное перекрытие.
Вторая верхняя обвязка из не строганной доски 150х40 мм и 100х40 мм.
Перекрытия из не строганной доски 150х50 мм.
Утепление потолка 100 мм или 150 мм рулонным утеплителем.
Паро-влагоизоляция: Ondutis R70.
Вент-зазор: Не строганная рейка 20х40 мм.
Отделка: Хвойная вагонка сорт "АВ".
Крыша дома и крыльца/террасы.
Стропильная система из не строганной доски 150х40 мм.
Ветро-влагозащита: Ondutis SА115.
Контробрешетка из не строганного бруска 45х45 мм.
Обрешетка из не строганной доски 100х20 мм.
Ондулин.
Металлочерепица 0.45 мм, профиль - Монтерей.
Свесы крыши 500 мм: Хвойная вагонка сорт "АВ".
Торцевые из строганной доски.
Вентиляционные решетки во фронтонах.
Окна.
Однокамерные стеклопакеты с профилем 60 мм.
Подоконники ПВХ.
Откосы внутренние и наружные из строганной доски.
Наличник внутренний и наружный из строганной доски.
Отлив металлический снаружи.
Двери.
Входная металлическая, производство Россия.
Двери внутренние.
Оформление стыков.
Плинтус и нащельник хвойных пород внутри дома.
Наружные углы дома из строганной доски.
Крыльцо и терраса.
Первый венец из не строганного бруса 150х150 мм.
Второй венец из не строганного бруса 150х50 мм.
Лаги из не строганной доски 150х50 мм.
Полы из строганной доски 36 мм. "Вельвет".
Столбы из строганного бруса 140х140 мм.
Перила из строганной доски 140х35 мм.
Балясины из строганной доски 90х16 мм.
Потолок: Хвойная вагонка сорт "АВ".
Организация строительства.
Доставка 500 км от производства.
Сборка.
Разгрузка.
Покраска дома снаружи.
Фундамент.
Отопление.
Канализация.
Электрика.
Бытовка для проживания строителей.
Туалет.
Акции для каркасных домов
Свяжитесь с нами по этому проекту
для уточнения информации
Шибаков Сергей
Шибаков Сергей главный инженер
8 (800) 555-21-96 (Звонок для Вас бесплатный)

5 шагов для осуществления своей мечты

step2
Встречаемся в офисе
или общаемся online
step3
Заключаем
договор
step4
Завозим материал
и строим дом
step5
Мечта
сбылась!
Добро пожаловать!

Мы используем файлы cookies для улучшения работы сайта. Продолжая пользоваться сайтом, вы соглашаетесь с нашей политикой