Каркасные дома и
дома из бруса под ключ
8 (800) 555-21-96
Россия
8 (499) 281-64-71
Москва
8 (812) 425-69-22
Санкт-Петербург
Живые фото в VK
Москва
ул. Проходчиков д. 16
10:00 до 20:00 Без обеда и выходных
Москва и
область

Одноэтажный дом из бруса «Мусь» 12х8

Назад
Под усадку 150 мм
2 483 500
Под усадку 200 мм
2 811 100
Под ключ 200 мм
4 054 300
Подробные комплектации
ООО «ПБК ПЛЮС»
ИНН: 5313014586
Аккредитованный подрядчик
в СберБанк и ДОМ.РФ
8% Ипотека с господдержкой
6% Семейная ипотека
5% Ипотека для IT
Характеристики
Материал стен
Материал стен
Брус
Этажность
Этажность
1
Размеры
Размеры
12 на 8
Площадь застройки
Площадь застройки
93 м2
Общая площадь
Общая площадь
79 м2
Сроки строительства
Сроки строительства
28-30 дней
Кол-во С/У
Кол-во С/У
1
Кол-во комнат
Кол-во комнат
3
Балкон
Балкон
Нет
Терраса
Терраса
Нет
Панорамные окна
Панорамные окна
Есть
Второй свет
Второй свет
Нет
5 лет
гарантия
по договору!
Технадзор
на каждом этапе
строительства
Строительство
по
проекту
Сухой
строганный
материал
Комплектация
Возможна перепланировка по данному проекту,
а также изменение в комплектации
2 483 500
Под усадку 150 мм
2 811 100
Под усадку 200 мм
4 054 300
Под ключ 200 мм
Пиломатериал.
КАМЕРНОЙ СУШКИ.
Обвязка.
Первый венец из не строганного бруса 200х150 мм.
Второй венец из не строганной бруса 200х150 мм.
Лаги из не строганной доски 200х50 мм.
Подшивная не строганная доска 40х100 мм.
Черновой пол из не строганной доски 20х100 мм.
Обработка антисептиком.
Сетка от грызунов.
Пол.
Влаго-ветрозащита: Ondutis А100.
Утепление пола 200 мм рулонным утеплителем.
Паро-влагоизоляция: Ondutis R70.
Вент-зазор: Строганная рейка 20х40 мм.
Чистовая отделка пола: Плиты ДСП.
Стены.
Высота потолка 2.6 м.
Сруб: Брус профилированный 132х135мм.
Сруб: Брус профилированный 132х185мм.
Тёплый угол.
Сборка на деревянные нагеля.
Межвенцовый утеплитель.
Перегородки.
Брус профилированный 132х90мм.
Чердачное перекрытие.
Перекрытия из не строганной доски 200х50 мм.
Утепление потолка 200 мм рулонным утеплителем.
Паро-влагоизоляция: Ondutis R70.
Вент-зазор: Строганная рейка 20х40 мм.
Отделка: Имитации бруса сорт "АВ".
Крыша дома и террасы/крыльца.
Стропильная система из не строганной доски 150х40 мм.
Ветро-влагозащита: Ondutis SА115.
Контробрешетка из калиброванного бруска 45х45 мм.
Обрешетка из не строганной доски 100х20 мм.
Кровельный материал: Металлочерепица 0.45 мм, профиль - Монтерей.
Кровельные комплектующие.
Свесы крыши 500 мм: Имитации бруса сорт "АВ".
Торцевые из строганной доски.
Вентиляционные решетки во фронтонах.
Окна.
Двухкамерные стеклопакеты с профилем 60 мм.
Подоконники ПВХ.
Откосы внутренние из строганной доски.
Наличник внутренний и наружный из строганной доски.
Отлив металлический снаружи.
Двери.
Входная металлическая, производство Россия.
Двери внутренние.
Оформление стыков.
Плинтус и нащельник хвойных пород внутри дома.
Наружные углы дома из строганной доски.
Терраса/крыльцо.
Первый венец из не строганного бруса 200х150 мм.
Второй венец из не строганного бруса 200х150 мм.
Лаги из не строганной доски 200х50 мм.
Полы из строганной доски 36 мм. "Вельвет".
Столбы из строганного бруса 140х140 мм.
Перила из строганной доски 140х35 мм.
Балясины из строганной доски 90х36 мм.
Потолок: Имитации бруса сорт "АВ".
Организация строительства.
Доставка 500 км от производства.
Сборка.
Разгрузка.
Покраска дома снаружи.
Фундамент.
Отопление.
Канализация.
Электрика.
Бытовка для проживания строителей.
Туалет.

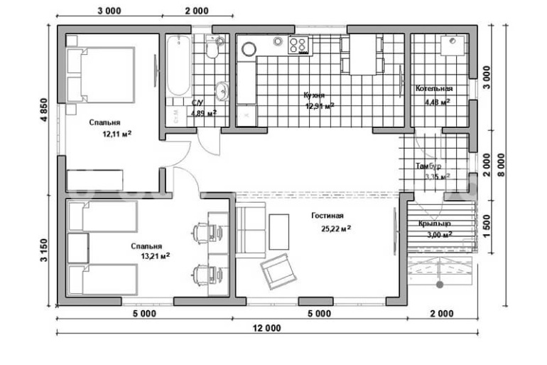
Одноэтажный дом «Мусь» – сочетание высокой эргономики, продуманной планировки и эстетической привлекательности. Просторный дом обеспечит комфорт для взрослых и детей. Является всесезонным, имеет удобную планировку и хорошую вместительность.

Внешний вид

Строгая геометрия фасада идеально сочетается с плавностью линий скатной крыши, образуя практичный ансамбль. Повышают эстетику большие окна и уютное крыльцо. В будущем,дизайн архитектурного решения можно украсить клумбами, вечнозелеными деревьями или обыкновенным газоном. Универсальный дизайн так же может сочетаться с детскими площадками, бассейнами, беседками.

Внутренняя планировка

Предусмотрен небольшой холл и котельная, которая предназначена для установки любого отопительного оборудования. Санузел совмещенный, в кухне можно разместить шкафы, духовку,стол со стульями для приема пищи и т.д.. Предусмотрена большая гостиная, в которой приятно отдыхать в кругу семьи или друзей. Есть две просторных спальни, которые не являются проходными. Площадь спален позволяет установить не только кровати, но и компьютерные столы, системы хранения вещей.

Типовые проекты домов в «ПБК-Плюс»

Компания «ПБК-Плюс» специализируется на малоэтажном жилищном строительстве, соблюдая нормы и правила, касающиеся технологий и материалов. Предлагаем клиентам интересные проекты, выполняем перепланировку по требованию абсолютно бесплатно. Вы можете заказать проект одноэтажного дома «Мусь», заполнив форму обратной связи. Наш менеджер поможет разобраться во всех технических нюансах, а также предоставит дополнительную информацию.

Акции для каркасных домов
Свяжитесь с нами по этому проекту
для уточнения информации
Шибаков Сергей
Шибаков Сергей главный инженер
8 (800) 555-21-96 (Звонок для Вас бесплатный)

5 шагов для осуществления своей мечты

step2
Встречаемся в офисе
или общаемся online
step3
Заключаем
договор
step4
Завозим материал
и строим дом
step5
Мечта
сбылась!
Добро пожаловать!

Мы используем файлы cookies для улучшения работы сайта. Продолжая пользоваться сайтом, вы соглашаетесь с нашей политикой