Каркасные дома и
дома из бруса под ключ
8 (800) 555-21-96
Россия
8 (499) 281-64-71
Москва
8 (812) 425-69-22
Санкт-Петербург
Живые фото в VK
Москва
ул. Проходчиков д. 16
10:00 до 20:00 Без обеда и выходных
Москва и
область

Одноэтажный дом из бруса «Кужолок» 10х8

Назад
Под усадку 150 мм
2 278 750
Под усадку 200 мм
2 579 050
Под ключ 200 мм
3 756 100
Подробные комплектации
ООО «ПБК ПЛЮС»
ИНН: 5313014586
Аккредитованный подрядчик
в СберБанк и ДОМ.РФ
8% Ипотека с господдержкой
6% Семейная ипотека
5% Ипотека для IT
Характеристики
Материал стен
Материал стен
Брус
Этажность
Этажность
1
Размеры
Размеры
10 на 8
Площадь застройки
Площадь застройки
80 м2
Общая площадь
Общая площадь
68 м2
Сроки строительства
Сроки строительства
20-25 дней
Кол-во С/У
Кол-во С/У
1
Кол-во комнат
Кол-во комнат
3
Балкон
Балкон
Нет
Терраса
Терраса
Нет
Панорамные окна
Панорамные окна
Есть
Второй свет
Второй свет
Нет
5 лет
гарантия
по договору!
Технадзор
на каждом этапе
строительства
Строительство
по
проекту
Сухой
строганный
материал
Комплектация
Возможна перепланировка по данному проекту,
а также изменение в комплектации
2 278 750
Под усадку 150 мм
2 579 050
Под усадку 200 мм
3 756 100
Под ключ 200 мм
Пиломатериал.
КАМЕРНОЙ СУШКИ.
Обвязка.
Первый венец из не строганного бруса 200х150 мм.
Второй венец из не строганной бруса 200х150 мм.
Лаги из не строганной доски 200х50 мм.
Подшивная не строганная доска 40х100 мм.
Черновой пол из не строганной доски 20х100 мм.
Обработка антисептиком.
Сетка от грызунов.
Пол.
Влаго-ветрозащита: Ondutis А100.
Утепление пола 200 мм рулонным утеплителем.
Паро-влагоизоляция: Ondutis R70.
Вент-зазор: Строганная рейка 20х40 мм.
Чистовая отделка пола: Плиты ДСП.
Стены.
Высота потолка 2.6 м.
Сруб: Брус профилированный 132х135мм.
Сруб: Брус профилированный 132х185мм.
Тёплый угол.
Сборка на деревянные нагеля.
Межвенцовый утеплитель.
Перегородки.
Брус профилированный 132х90мм.
Чердачное перекрытие.
Перекрытия из не строганной доски 200х50 мм.
Утепление потолка 200 мм рулонным утеплителем.
Паро-влагоизоляция: Ondutis R70.
Вент-зазор: Строганная рейка 20х40 мм.
Отделка: Имитации бруса сорт "АВ".
Крыша дома и террасы/крыльца.
Стропильная система из не строганной доски 150х40 мм.
Ветро-влагозащита: Ondutis SА115.
Контробрешетка из калиброванного бруска 45х45 мм.
Обрешетка из не строганной доски 100х20 мм.
Кровельный материал: Металлочерепица 0.45 мм, профиль - Монтерей.
Кровельные комплектующие.
Свесы крыши 500 мм: Имитации бруса сорт "АВ".
Торцевые из строганной доски.
Вентиляционные решетки во фронтонах.
Окна.
Двухкамерные стеклопакеты с профилем 60 мм.
Подоконники ПВХ.
Откосы внутренние из строганной доски.
Наличник внутренний и наружный из строганной доски.
Отлив металлический снаружи.
Двери.
Входная металлическая, производство Россия.
Двери внутренние.
Оформление стыков.
Плинтус и нащельник хвойных пород внутри дома.
Наружные углы дома из строганной доски.
Терраса/крыльцо.
Первый венец из не строганного бруса 200х150 мм.
Второй венец из не строганного бруса 200х150 мм.
Лаги из не строганной доски 200х50 мм.
Полы из строганной доски 36 мм. "Вельвет".
Столбы из строганного бруса 140х140 мм.
Перила из строганной доски 140х35 мм.
Балясины из строганной доски 90х36 мм.
Потолок: Имитации бруса сорт "АВ".
Организация строительства.
Доставка 500 км от производства.
Сборка.
Разгрузка.
Покраска дома снаружи.
Фундамент.
Отопление.
Канализация.
Электрика.
Бытовка для проживания строителей.
Туалет.

Изящный одноэтажный дом «Кужолок» может использоваться в качестве дачи или дома для постоянного проживания в любое время года, позволяя с комфортом разместиться большой семье и удовлетворить требования к эстетической привлекательности, функциональности и энергоэффективности.

Внешний вид

В экстерьере дома сочетаются элементы, создающие гармоничный ансамбль. Он характеризуется плавностью линий, дополнен большими окнами и практичной входной группой. Дом станет идеальным решением для участка, имеющего небольшую площадь. Украшает композицию небольшая открытая терраса. Дом, окруженный забором, ландшафтным дизайном и озеленением, будет выглядеть стильно.

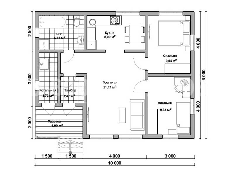
Внутренняя планировка

Высокая функциональность планировки обеспечивает комфорт каждого жильца. В доме предусмотрен тамбур для хранения верхней одежды и обуви. Выделено помещение под котельную, что позволяет использовать любые виды отопительного оборудования – от газовых до твердотопливных котлов. Жилой блок состоит из проходной гостиной, двух уединенных спален, просторной кухни и санузла.

Почему стоит заказать проект в компании «ПБК-Плюс»: преимущества

Команда «ПБК-Плюс» располагает богатым опытом, собственным производством и профессиональными знаниями, помогающими нам создавать современные архитектурные решения. Вы можете заказать проект одноэтажного дома «Кужолок», а также запросить перепланировку, ориентируясь на свои вкусы и требования. Закажите обратный звонок, чтобы получить больше информации!

Акции для каркасных домов
Свяжитесь с нами по этому проекту
для уточнения информации
Шибаков Сергей
Шибаков Сергей главный инженер
8 (800) 555-21-96 (Звонок для Вас бесплатный)

5 шагов для осуществления своей мечты

step2
Встречаемся в офисе
или общаемся online
step3
Заключаем
договор
step4
Завозим материал
и строим дом
step5
Мечта
сбылась!
Добро пожаловать!

Мы используем файлы cookies для улучшения работы сайта. Продолжая пользоваться сайтом, вы соглашаетесь с нашей политикой