Каркасные дома и
дома из бруса под ключ
8 (800) 555-21-96
Россия
8 (499) 281-64-71
Москва
8 (812) 425-69-22
Санкт-Петербург
Живые фото в VK
Москва
ул. Проходчиков д. 16
10:00 до 20:00 Без обеда и выходных
Москва и
область

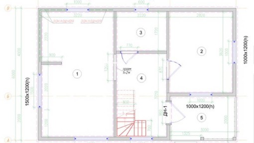
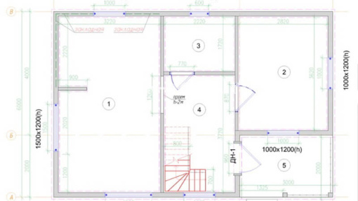
Двухэтажный каркасный дом 9х6м в Московской области

Двухэтажный каркасный дом 9х6м в Московской области
Площадь
102 м2
Количество
комнат
5
Количество
санузлов
2
Балконы
Нет
Терраса
Есть
В проект входит:
Фундамент | Кровля | Силовой каркас | Наружная отделка | Покраска | Окна | Входная дверь | Водосточная система | Доставка | Гарантия | Персональный менеджер | Технадзор | Проектная документация
Добро пожаловать!

Мы используем файлы cookies для улучшения работы сайта. Продолжая пользоваться сайтом, вы соглашаетесь с нашей политикой